Gemütlichkeit und Stil im kompakten Format
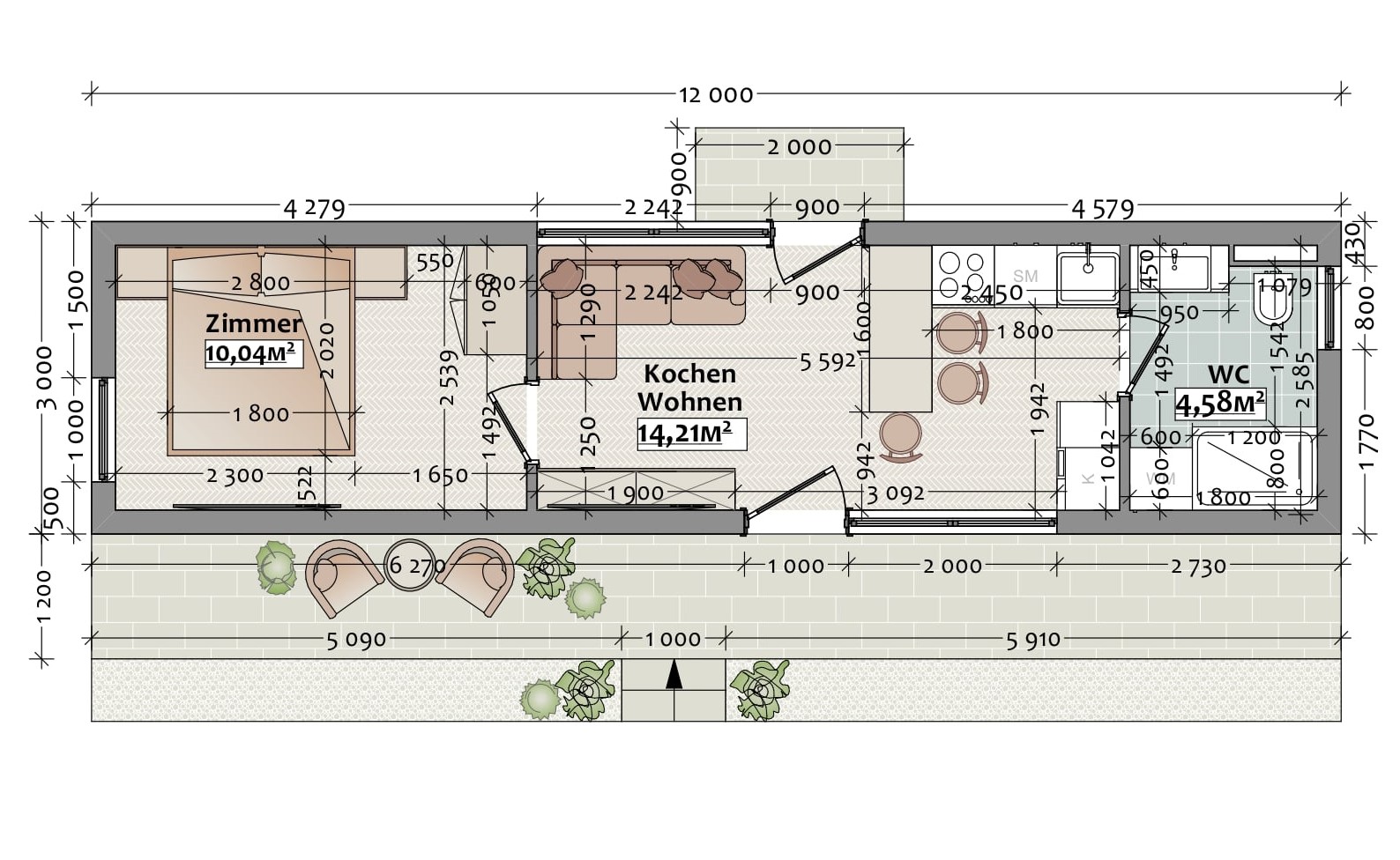
- Nettofläche: 30 m²
- Wohnraum, Bad, WC, Küche
- Heizung / Kühlung: Klima
Chalet 30 ist ein modernes Modulhaus, das sich ideal für das Leben auf dem Land, zur Erholung oder als zusätzlicher Wohnraum eignet. Mit seinem eleganten Design und der funktionalen Raumaufteilung fügt sich das Haus harmonisch in jede Umgebung ein.
Eigenschaften:
- Gesamtfläche: 30 m², optimal für komfortables Wohnen.
- Raumaufteilung: Geräumiges Wohnzimmer mit Küchenbereich, separates Badezimmer, gemütlicher Schlafbereich und optional eine Terrasse.
- Materialien: Energieeffiziente und umweltfreundliche Materialien, die Langlebigkeit und Komfort gewährleisten.
- Heizung: Konvektoren und Klimaanlage in der Standardausstattung. Installation eines stilvollen Kamins optional möglich.
- Flexibilität: Das Haus kann auf jedem Gelände installiert werden, unabhängig von dessen Beschaffenheit.
Vorteile:
- Effektive Raumnutzung bei kompakten Abmessungen.
- Schnelle Lieferung und Installation ohne lange Bauzeiten.
- Anpassbar an individuelle Bedürfnisse und Stilvorlieben.
Chalet 30 – Gemütlichkeit, Funktionalität und modernes Wohnen in einer kompakten Lösung!
.jpg)