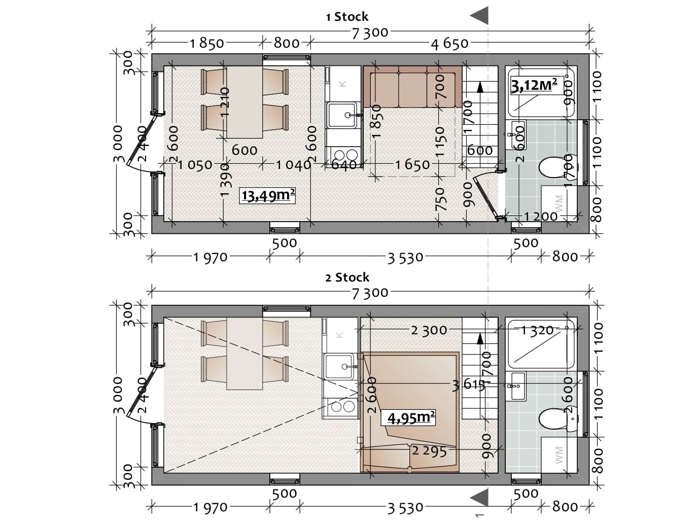
- Nettofläche: 20.58 m²
- Wohnraum, Bad, WC, Küche
- Heizung / Kühlung: Klima
- Bad voll ausgestattet
- Küche: Optional Küche voll ausgestattet & Möbliert
Refugio S ist die ideale Wahl für diejenigen, die Stil, Komfort und Kompaktheit schätzen.
-
- Wohnbereich: 13,49 m², inklusive Küche
- Badezimmer: 3,12 m²: Enthält Toilette, Waschbecken und Duschbereich.
- Schlafbereich: 4,95 m²
Fassadenmaterial: Die Außenfassade des Hauses besteht aus japanischem carbonisierten Holz, auch bekannt als Yakisugi oder Shou Sugi Ban.
Diese Technik umfasst das Verkohlen des Holzes, um es zu konservieren und ihm ein charakteristisches dunkles Aussehen zu verleihen und eine hohe Langlebigkeit zu garantieren. Holzfassade, Metall, Thermoholz und Komposit WPC.
.jpg)