Zwei Geschosse 6,8 m x 2,5 m
Geräumiges und vielseitiges Modulhaus für komfortables Wohnen
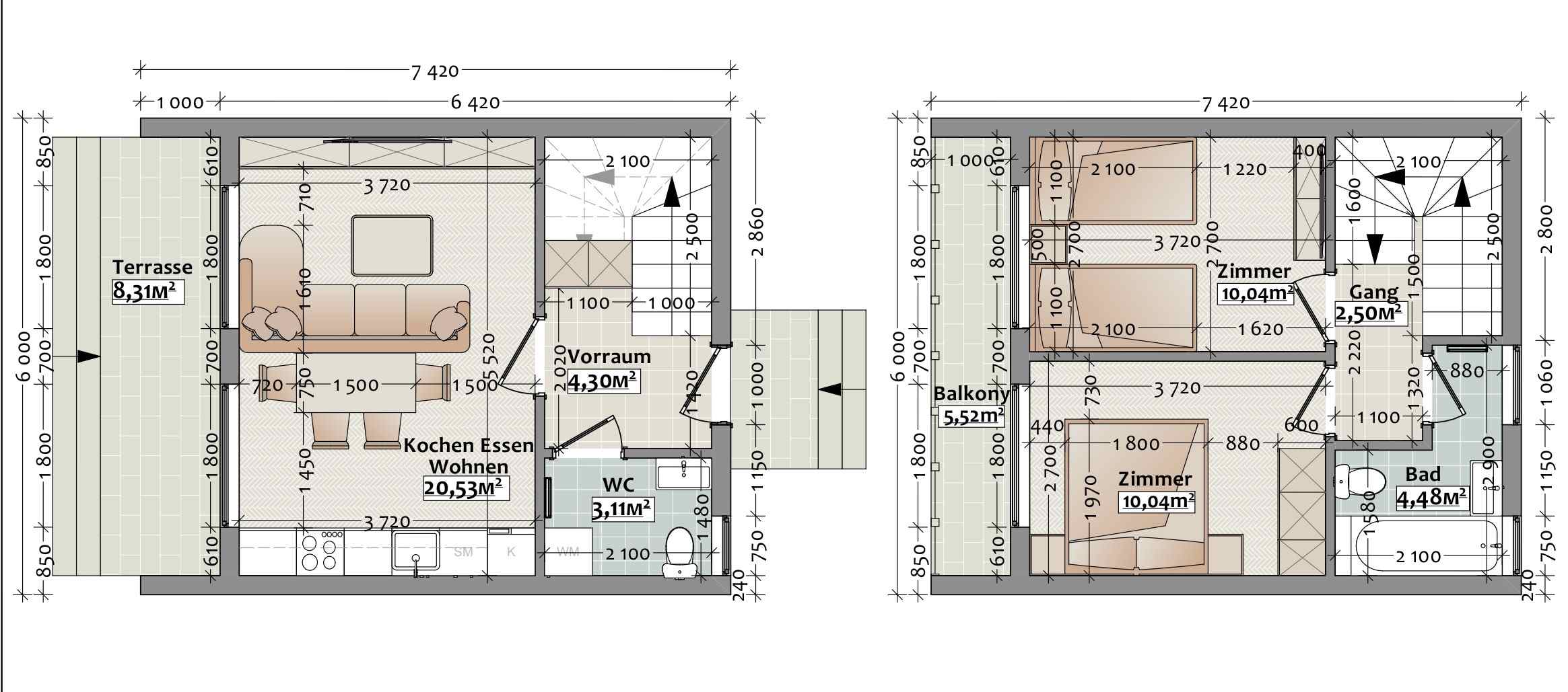
- Nettofläche: 55 m²
- Wohnraum, Bad, WC, Küche
- Heizung / Kühlung: Klima
- Bad voll ausgestattet
- Küche: Küche voll ausgestattet opt.
Topex 55 – ein modernes Modulhaus mit einer Wohnfläche von insgesamt 55 m², das für diejenigen entwickelt wurde, die Geräumigkeit, Funktionalität und Stil schätzen. Dieses Haus eignet sich perfekt für Familienwohnen, Urlaub oder Vermietung.
Hauptmerkmale:
- Wohnfläche: 55 m²
- Bebaute Fläche: 44,52 m²
Grundriss:
- Schlafzimmer: Zwei komfortable Räume, ideal für Familien.
- Wohnzimmer/Küche: Ein großzügiger Wohnbereich, kombiniert mit einer funktionalen Küche, schafft eine gemütliche und komfortable Atmosphäre. Diese Lösung vergrößert den Raum optisch, während Küche und Wohnzimmer harmonisch ineinandergreifen und ein stilvolles Gesamtbild schaffen.
- Badezimmer: Ein geräumiges Badezimmer befindet sich im zweiten Stock und ist für die beiden Schlafzimmer vorgesehen, was Komfort und Bequemlichkeit gewährleistet. Zusätzlich gibt es im Erdgeschoss ein Gäste-WC, das den Raum funktional und praktisch für Sie und Ihre Gäste macht.
Vorteile des Topex 55:
- Umweltfreundlichkeit: Sichere und nachhaltige Materialien.
- Energieeffizienz: Moderne Isolierung sorgt für Komfort zu jeder Jahreszeit.
- Vielseitigkeit: Geeignet für Familienwohnen, Urlaub oder kommerzielle Vermietung.
- Ästhetik: Elegantes Design mit natürlichen Materialien.
Topex 55 ist das ideale Zuhause für alle, die Komfort, Stil und Qualität zu schätzen wissen. Sein vielseitiges Design und die durchdachte Raumaufteilung machen es perfekt für die Installation sowohl auf Naturgrundstücken als auch in städtischen Umgebungen.
1.jpg)