Dein nachhaltiges und stilvolles Zuhause im skandinavischen Design
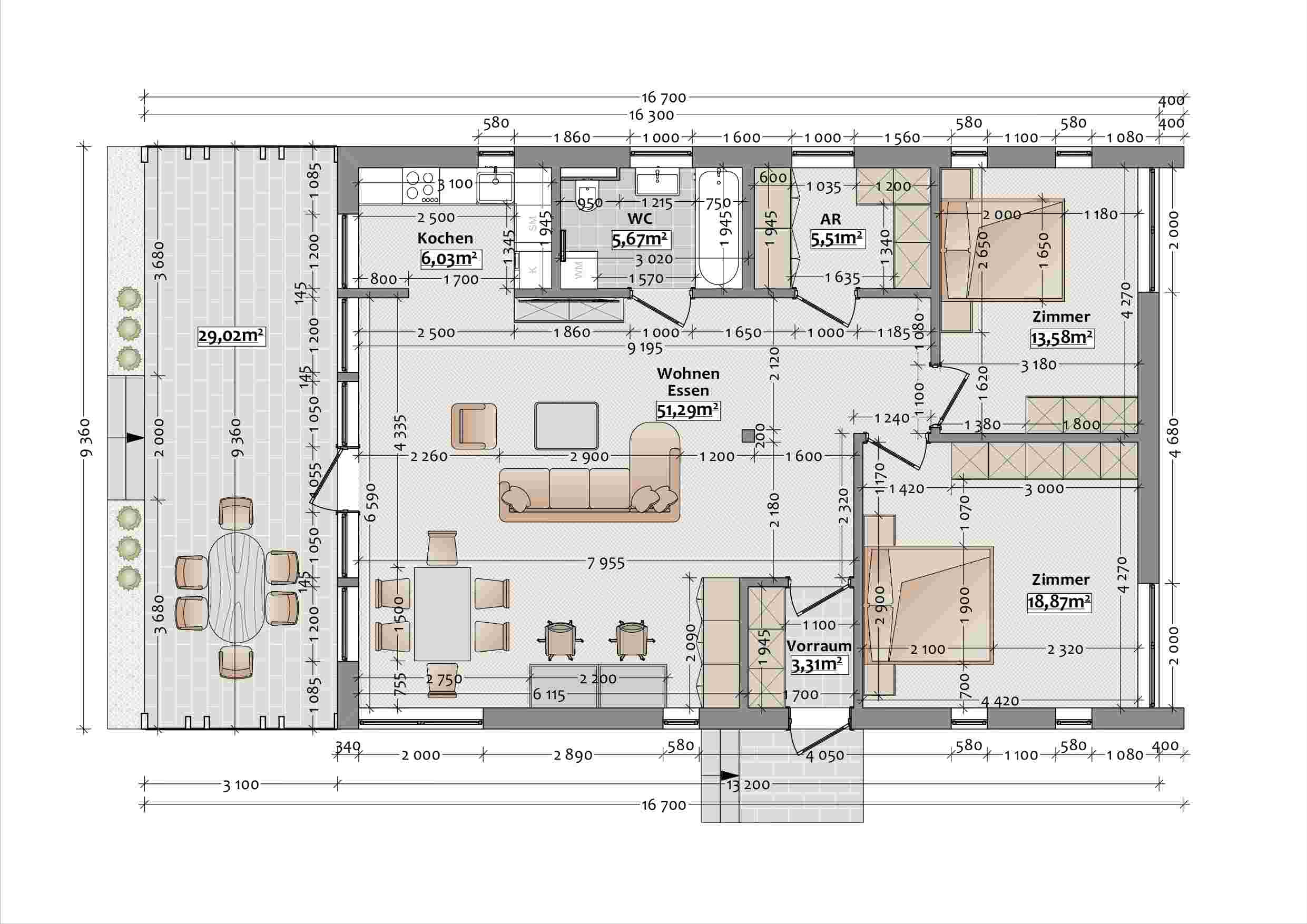
- Nettofläche: 104.26 m²
- Wohnraum, Bad, WC, Küche
- Heizung / Kühlung: Klima
- Bad voll ausgestattet
Nordic 101 – die Wahl für alle, die ein ökologisches, stilvolles und praktisches Zuhause suchen
Das Haus "Nordic 101" ist ein modernes Fertighaus im skandinavischen Stil, das sich durch seine nachhaltige Bauweise, hochwertige Materialien und optimierte Funktionalität auszeichnet. Es bietet Komfort, Umweltbewusstsein und modernes Design in einem.
Haupteigenschaften:
Fläche und Grundriss: Die Gesamtnettofläche beträgt 104,26 m² und bietet den idealen Raum für Paare oder kleine Familien. Der durchdachte Grundriss umfasst ein großzügiges Wohnzimmer, zwei Schlafzimmer, eine offene Wohnküche und ein Badezimmer. Eine Veranda mit einer Fläche von 29,02 m² lädt zum Entspannen im Freien ein.
Materialien und Konstruktion: Das Haus wird mit modernster Technologie und umweltfreundlichen Materialien gebaut. Die Konstruktion basiert auf Holzrahmen, die mit Steinwolle isoliert sind und hervorragende Wärmedämmung bieten (U-Wert 0,14 W/m²K).
Die Fassade kann individuell aus Holz, Metall oder karbonisiertem Holz gestaltet werden.
Heizung und Energieeffizienz: Das effiziente Heizsystem mit Wärmedämmung sorgt für ein angenehmes Raumklima und reduziert Energiekosten. Der Energieverbrauch entspricht den hohen österreichischen Standards.
Belüftung: Das Badezimmer ist mit einem modernen Lüftungssystem ausgestattet. Optional kann eine dezentrale oder zentrale Lüftung mit Wärmerückgewinnung integriert werden.
Elektrik: Die Elektroinstallation umfasst Lichtschalter, Steckdosen und eine Außenbeleuchtung von Legrand.
Design und Komfort:
Innenraum: Helle, offene Räume mit großen Fenstern (3-fach verglast, U-Wert 0,14 W/m²K) sorgen für viel Tageslicht und eine angenehme Atmosphäre. Moderne Laminatböden und eine durchdachte Beleuchtung runden das Design ab.
Sanitäreinrichtungen: Das Badezimmer ist mit hochwertigen Keramikfliesen, Sanitäranlagen von Geberit, Armaturen von Grohe und einer Dusche oder Badewanne von Duravit ausgestattet.
Terrasse: Die großzügige Veranda bietet zusätzlichen Raum für Freizeit und Erholung.
Besonderheiten:
- Flexible Konstruktion: Möglichkeit, den Grundriss individuell anzupassen.
- Modulare Bauweise: Kann an nahezu jedem Standort installiert werden.
- Vielseitigkeit: Geeignet sowohl für dauerhaften Wohnsitz als auch für saisonale Nutzung.
"Nordic 101" vereint skandinavischen Stil, ökologische Verantwortung und höchsten Wohnkomfort. Es ist die perfekte Wahl für alle, die ein modernes, nachhaltiges Zuhause suchen.
