• Nettofläche: 82.4
  • Wohnraum, Bad, WC, Küche
  • Heizung / Kühlung: Klima
  • Bad voll ausgestattet

Dein nachhaltiges Zuhause im skandinavischen Stil für ein komfortables Leben

PREIS AB: 193800
Satteldach

Nordic 87 – die perfekte Kombination aus skandinavischem Design und nachhaltigem Wohnen

Das Haus "Nordic 87" ist ein kompaktes, modernes Fertighaus im skandinavischen Stil, das durch Funktionalität, Ästhetik und Umweltbewusstsein überzeugt. Es bietet alle Annehmlichkeiten für ein komfortables Leben und ist dabei ökologisch und preisbewusst.

Haupteigenschaften:

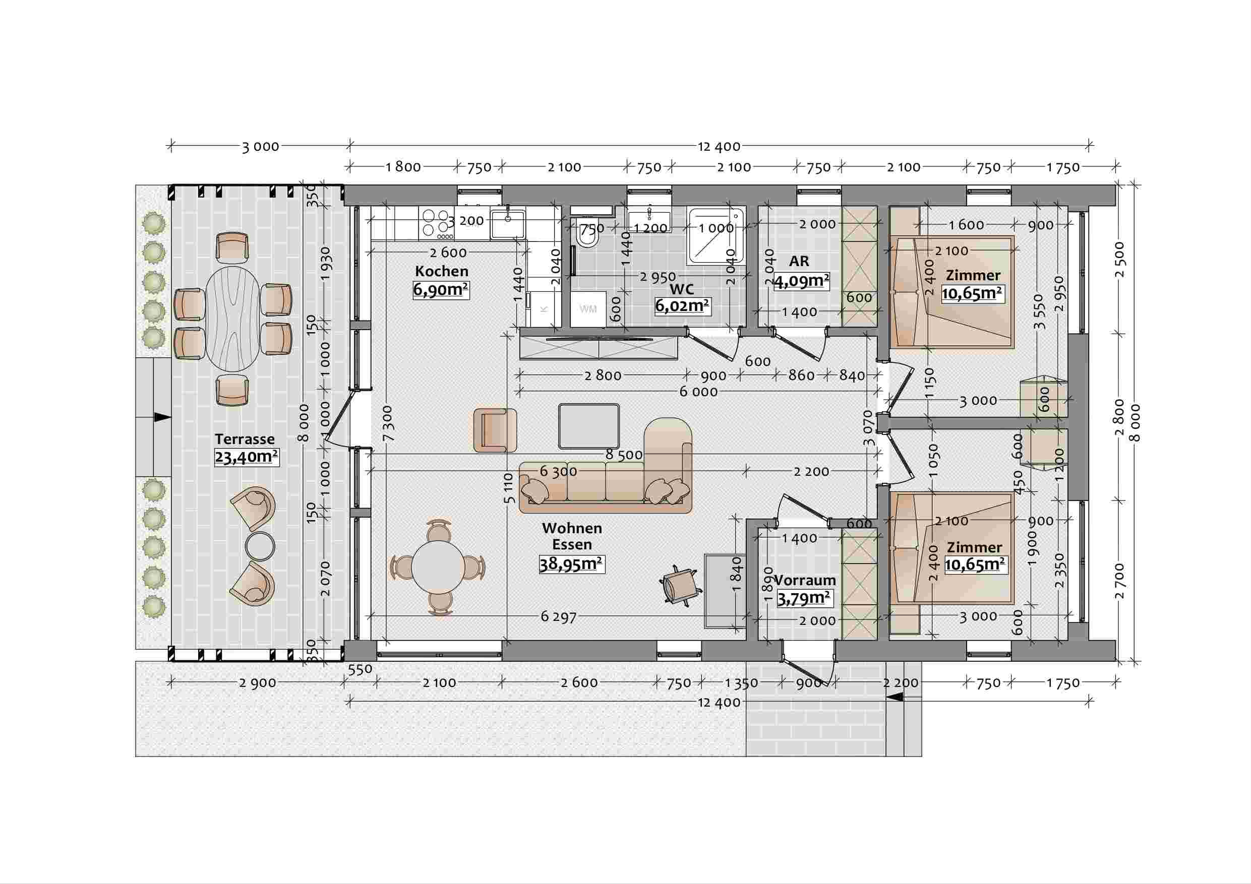
Fläche und Grundriss: Mit einer Gesamtnettofläche von 81,05 m² und einer Veranda von 23,40 m² bietet das Haus "Nordic 87" ausreichend Raum für Paare oder kleine Familien. Der Grundriss umfasst ein großzügiges Wohnzimmer, zwei Schlafzimmer, eine offene Wohnküche und ein modernes Badezimmer. Die offene Veranda lädt zum Verweilen an der frischen Luft ein.

Materialien und Konstruktion: Die Konstruktion basiert auf Holzrahmen mit Steinwolleisolierung, die eine hervorragende Wärmedämmung bietet (U-Wert 0,14 W/m²K).
Die Fassade kann individuell gestaltet werden – aus Holz, Metall oder karbonisiertem Holz – und verleiht dem Haus einen natürlichen, modernen Look.

Heizung und Energieeffizienz: Das Haus erfüllt die hohen österreichischen Standards für Energieeffizienz. Die Dämmung und das Heizsystem schaffen ein angenehmes Raumklima und reduzieren die Energiekosten nachhaltig.

Belüftung: Das Badezimmer ist mit einem leistungsstarken Lüftungssystem ausgestattet. Optional sind dezentrale oder zentrale Lüftungsanlagen mit Wärmerückgewinnung möglich.

Elektrik: Das Haus verfügt über eine moderne Elektroinstallation mit Legrand-Lichtschaltern und Doppelsteckdosen. Außen- und Innenbeleuchtung sorgen für zusätzlichen Komfort.

Design und Komfort:

Innenraum: Helle Räume mit bodentiefen Fenstern (Salamander 3-fach verglast) sorgen für viel Tageslicht und eine angenehme Wohnatmosphäre. Der offene Dachstuhl und die durchdachte Beleuchtung schaffen ein großzügiges Raumgefühl.

Sanitäreinrichtungen: Das Badezimmer ist mit hochwertigen Keramikfliesen, Sanitäranlagen von Geberit, einer Dusche oder Badewanne von Duravit und Armaturen von Grohe ausgestattet.

Terrasse: Die Veranda bietet eine ideale Fläche für Entspannung und Freizeitaktivitäten.

Besonderheiten:
  • Flexible Gestaltung: Anpassbarer Grundriss nach Kundenwunsch.
  • Modularität: Kann an fast jedem Standort installiert werden.
  • Vielseitigkeit: Perfekt als dauerhafter Wohnsitz oder Ferienhaus geeignet.

Das "Nordic 87" ist die ideale Lösung für alle, die skandinavisches Design, Nachhaltigkeit und Komfort in einem kompakten, modernen Zuhause vereinen möchten.

HAUSKALKULATION

0

0

0

 

PLAN

Nordic 87

WA