Modernes Haus, erfüllt mit Licht und Natur
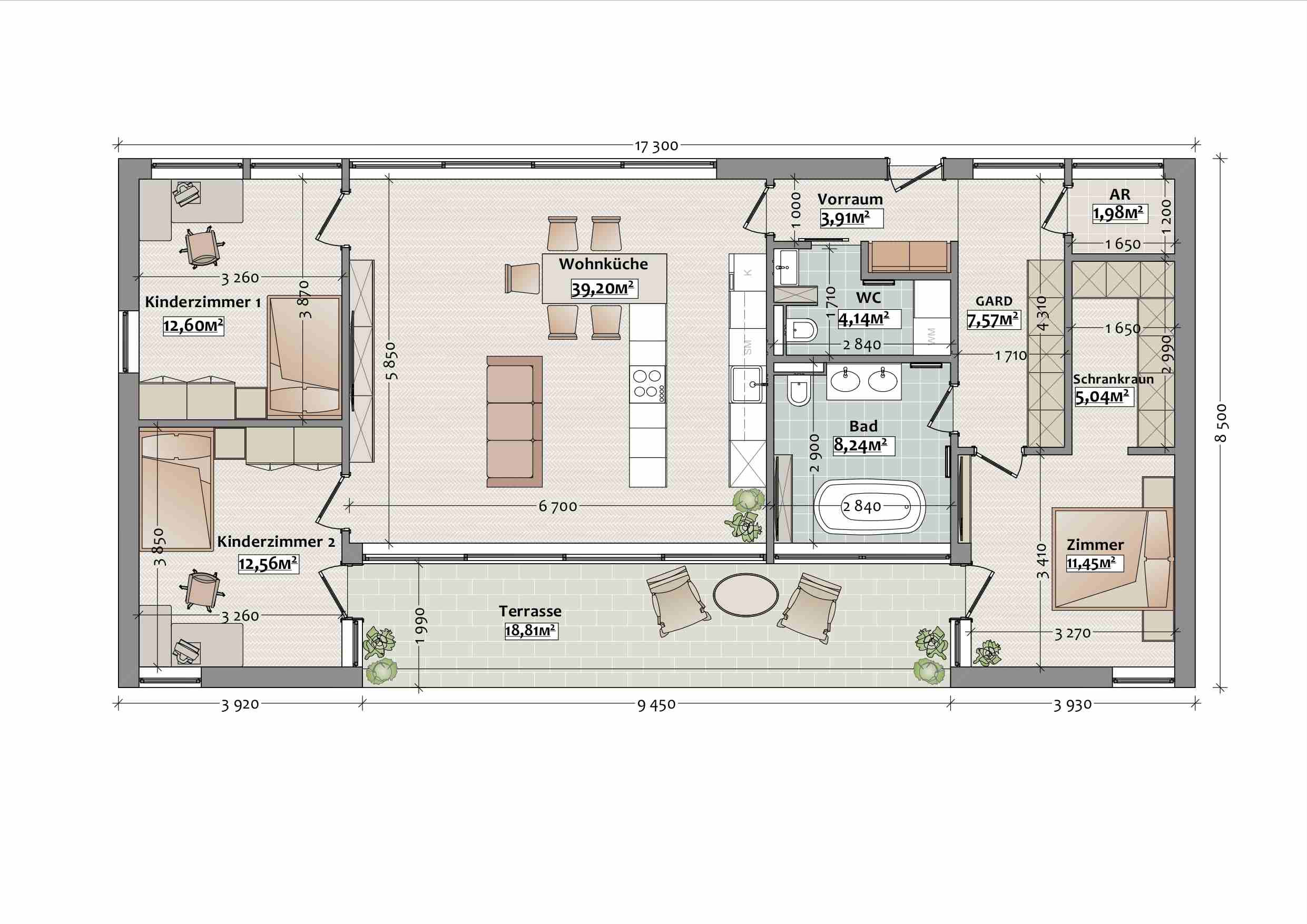
- Nettofläche: 106.78 m²
- Wohnraum, Bad, WC, Küche
- Heizung / Kühlung: Klima
- Bad voll ausgestattet
Der luxuriös ausgeführte Bungalow Zen Loft One beeindruckt mit hochwertiger Verarbeitung und erlesenen Materialien. Das ausgeklügelte Raumkonzept des Modulhauses erfüllt höchste Ansprüche an Wohnkomfort und Raumgefühl. Einer der größten Vorteile ist die kurze Bauzeit, die es ermöglicht, den Traum vom modernen Wohnen schnell zu verwirklichen.
Ein Raum, erfüllt mit Licht und Natur:
- Das großzügige Wohn- und Esszimmer mit einer Fläche von 39 m² und großen Fensterflächen zur grünen Oase schafft ein Gefühl von Behaglichkeit und Harmonie. Über die Hebe-Schiebetür gelangt man in den Garten, wo die überdachte Terrasse vor Sonne und Wetter schützt und ein ganzjähriges Naturerlebnis ermöglicht.
- Zwei Schlafzimmer, die auch als Arbeitszimmer genutzt werden können, bieten Funktionalität und Komfort.
- Das geräumige Elternschlafzimmer mit Zugang zum Garten und begehbarem Kleiderschrank schafft eine private und entspannte Atmosphäre. Wachen Sie mit Vogelgezwitscher auf und genießen Sie den Blick in den Garten direkt aus dem Fenster.
Praktische Lösungen für Ihren Komfort:
- Eingebaute Schränke im Flur ermöglichen eine optimale Raumnutzung.
- Ein separates WC und zahlreiche Abstellmöglichkeiten sorgen für ausreichend Platz und Bequemlichkeit.
Das absolute Highlight – das Badezimmer:
Die Möglichkeit, direkt von der Badewanne aus in den eigenen Garten zu schauen, macht dieses Haus zu einem wahren Paradies auf Erden.
Moderne Architektur und Stil:
Das Modulhaus Zen Loft One ist ein architektonisches Meisterwerk. Sie können zwischen einem Flachdach oder einem Walmdach wählen, und das moderne Design unterstreicht Ihren einzigartigen Stil.
Zen Loft One – ein Haus, das Komfort, Natur und Stil vereint und den perfekten Raum zum Leben schafft.
