Modulares Haus Zen Loft Walmdach 17,3 m x 8,5 m
Ideal für alle, die großzügigen Wohnraum und eine harmonische Verbindung von Komfort und Stil suchen.
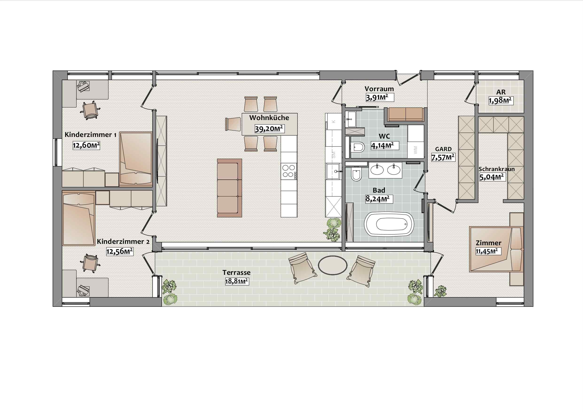
- Nettofläche: 106.69 m²
- Wohnraum, Bad, WC, Küche
- Heizung / Kühlung: Klima
- Bad voll ausgestattet
Zen Loft Walmdach – Raum, in dem Stil auf Natur trifft
Das Haus Zen Loft Walmdach ist die ideale Wahl für alle, die Komfort, Eleganz und Harmonie mit der Natur schätzen. Ein großzügiges, lichtdurchflutetes Haus mit modernem Design und durchdachter Funktionalität wird zu einer wahren Wohlfühloase für die ganze Familie.
Hauptmerkmale:
- Wohnfläche: 106,69 m²
- Bebaute Fläche: 128,25 m²
- Anzahl der Zimmer: 4, darunter 3 Schlafzimmer
- Terrasse: Großzügiger Außenbereich mit einer Fläche von 18,8 m²
Vorteile von Zen Loft Walmdach:
- Geräumiges Wohn- und Esszimmer mit großen Fenstern, die den Raum mit natürlichem Licht durchfluten. Die offene Küche ist mit dem Wohnzimmer verbunden und schafft eine angenehme Atmosphäre für Kommunikation und Familientreffen.
- Drei Schlafzimmer: Ein großes Hauptschlafzimmer mit Zugang zum Garten und einem eingebauten Kleiderschrank sowie zwei weitere Zimmer, die als Kinderzimmer oder Büros genutzt werden können.
- Badezimmer mit Gartenblick: Eine einzigartige Lösung, die es ermöglicht, die Natur direkt aus der Badewanne zu genießen.
- Moderne Terrasse: Ein gemütlicher Ort zum Entspannen, geschützt vor Sonne und Regen.
Design und Nachhaltigkeit:
Das Zen Loft Walmdach beeindruckt mit stilvoller Architektur, einem Walmdach, hohen Decken und modernen Materialien, die Energieeffizienz und Langlebigkeit garantieren.
Praktikabilität und Stil:
- Hochwertige Laminatböden schaffen eine gemütliche Atmosphäre.
- Modernes Lichtdesign betont den Stil und Komfort des Innenraums.
- Große Aufmerksamkeit wurde der Funktionalität gewidmet, darunter eingebaute Schränke und zusätzliche Stauraumflächen.
Zen Loft Walmdach – Ihr modernes Zuhause, das Komfort, Natur und Stil vereint.
