Funktionales Haus mit durchdachter Architektur und komfortabler Terrasse
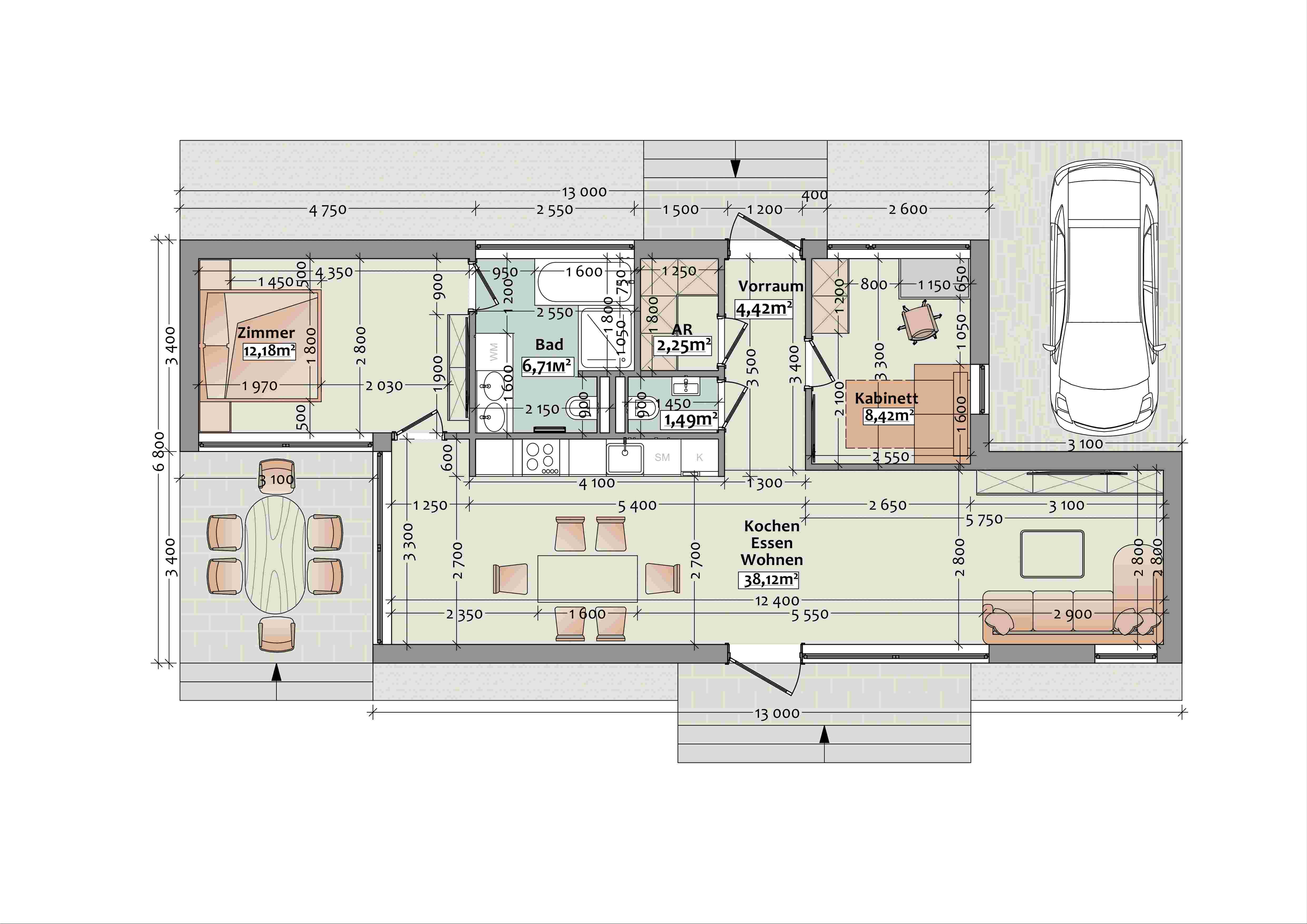
- Nettofläche: 68 m²
- Wohnraum, Bad, WC, Küche
- Heizung / Kühlung: Klima
- Bad voll ausgestattet
Scala 68 ist eine moderne Lösung für kompaktes und komfortables Wohnen. Die einzigartige Konstruktion des Hauses, die Nachhaltigkeit und moderne Technologien kombiniert, ermöglicht eine effiziente Nutzung des Grundstücks und schafft ideale Lebensbedingungen.
Merkmale und Vorteile:
- Optimale Wohnfläche: 68 m² Wohnraum, der für den täglichen Komfort optimal gestaltet ist.
- Funktionale Terrasse: Der überdachte Bereich bietet zusätzlichen Raum zur Erholung, geschützt vor Regen und direkter Sonneneinstrahlung – besonders praktisch für ein Einfamilienhaus.
- Effiziente Grundstücksnutzung: Die kompakte Bauweise ermöglicht die Platzierung des Hauses selbst auf begrenzten Grundstücken, ohne dabei auf Ästhetik oder Funktionalität zu verzichten.
- Flexible Lösungen: Im hinteren Bereich des Hauses gibt es eine Veranda und eine Terrasse, die für Erholung oder Familienveranstaltungen genutzt werden können.
- Architektonische Anordnung der Module: Dank der durchdachten Konstruktion entsteht zusätzlicher Raum, der entweder als Stellplatz für ein Fahrzeug genutzt oder bei Bedarf in eine weitere Terrasse umgewandelt werden kann, um die Funktionalität des Hauses zu erweitern.
Technische Merkmale:
- Energieeffizienz: Wärmedämmung der Wände mit Steinwolle, dreifach verglaste Fenster von Salamander und energieeffiziente Heizsysteme.
- Natürliche Materialien: Die Fassade besteht aus einer Kombination aus Putz und Holz, was ein stilvolles Erscheinungsbild und eine langlebige Konstruktion garantiert.
- Grundriss: Ein geräumiges Wohnzimmer mit großen Fenstern, kombiniert mit einer offenen Küche, zwei Schlafzimmern und einem Badezimmer.
Scala 68 ist ein Haus, das Funktionalität, Komfort und modernes Design vereint. Die einfache und durchdachte Architektur macht es zur optimalen Wahl für Familien und diejenigen, die Praktikabilität und eine flexible Nutzung des Raumes schätzen.
.png)